Beschrijving

Op zaterdag 14 juni a.s. houden we van 10:00 - 12:00 uur 2 inloopuurtjes. Kom zonder je aan te melden vrijblijvend eens deze woning bekijken en laat je verrassen!

Deze charmante 2-onder-1-kapwoning combineert comfortabele leefruimte met praktische voorzieningen. Denk aan een royale woonkamer, een moderne open leefkeuken, drie volwaardige slaapkamers, een diepe tuin met overkapping én een indrukwekkend grote garage met smeerput. Dankzij de ruime oprit, dubbele tuinpoorten en een achterom via een breed pad – exclusief voor aanwonenden – is deze woning ook qua bereikbaarheid ideaal. Een perfecte plek voor gezinnen, hobbyisten of autoliefhebbers!

Indeling

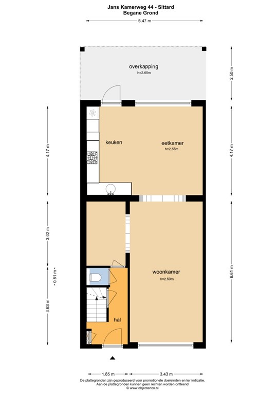
Je komt de woning binnen via de hal, waar je toegang hebt tot het moderne, zwevende toilet, de trap naar boven én de provisiekelder – handig voor extra opslag. De ruime, lichte woonkamer biedt volop ruimte voor een comfortabele zit- en eethoek. Grote raampartijen zorgen voor een prettige lichtinval, wat zorgt voor een warme en uitnodigende sfeer.
Aansluitend aan de woonkamer ligt de royale open leefkeuken, voorzien van diverse inbouwapparatuur zoals een vaatwasser en oven. De keuken is ruim genoeg voor een grote eettafel, waardoor je hier gezellig kunt tafelen of borrelen met familie en vrienden.

Eerste verdieping

Op de eerste verdieping vind je twee ruime slaapkamers en een modern afgewerkte badkamer. Deze is voorzien van een inloopdouche, ligbad, tweede (zwevend) toilet, een designradiator én een dubbele wastafel – ideaal voor drukke ochtenden.

Tweede verdieping

De derde slaapkamer ligt op de tweede verdieping, in een royale zolderkamer met dakkapel. Hier is ook een aparte ruimte met de Nefit cv-ketel (bouwjaar 2015, eigendom).

Overige verdiepingen

Extra handig: er is ook een provisiekelder aanwezig, perfect voor het bewaren van voorraad of als extra opbergruimte.

Tuin

De diepe en zonnige achtertuin is keurig aangelegd en biedt volop ruimte om te ontspannen, te tuinieren of te spelen. Er zijn twee terrassen én een grote overkapping waar je het hele jaar door beschut kunt zitten. Zowel aan de voor- als aan de achterzijde van de woning is een grote openslaande poort, wat het gemakkelijk maakt om met bijvoorbeeld een aanhangwagen, motor of tuingereedschap de tuin te betreden. Daarnaast is de tuin ook via een achterom bereikbaar, via een breed pad waar uitsluitend aanwonenden toegang toe hebben. Dit zorgt voor extra gemak én rust.

Achter het perceel loopt een treintraject, maar dit wordt bereden door zogenoemde ‘fluistertreinen’ die nauwelijks hoorbaar zijn. In combinatie met de ruime tuin en het groene karakter van de omgeving, geniet je hier van veel rust én optimale privacy.

Bijzonderheden

De ruime garage is een unieke troef: voorzien van een smeerput en een elektrisch bedienbare sectionaalpoort is dit dé plek voor de hobbyklusser of autoliefhebber. In de garage bevindt zich bovendien een apart washok met aansluitingen voor een wasmachine en droger. Ook qua opbergruimte kom je hier niets tekort.

• Karakteristieke 2-onder-1-kapwoning op rustige locatie
• Ruime woonkamer en open leefkeuken met inbouwapparatuur
• Drie volwaardige slaapkamers
• Luxe badkamer met inloopdouche, ligbad, dubbele wastafel en 2e toilet
• Provisiekelder en aparte cv-ruimte (Nefit, 2015, eigendom)
• Fraaie, diepe tuin met twee terrassen, grote overkapping en volop privacy
• Grote openslaande poorten aan voor- én achterzijde van de tuin
• Tuin via achterom bereikbaar via breed pad met alleen toegang voor aanwonenden
• Zeer ruime garage met smeerput, sectionaalpoort en aparte wasruimte
• Achterzijde grenst aan spoorlijn met fluistertreinen – géén merkbare overlast

Kenmerken