Beschrijving
Op zoek naar een interessante belegging?
Dit verhuurde bedrijfscomplex is gelegen op het bedrijventerrein "De Berk" op een perceel van 6005 m2.
Het perceel heeft volgens het bestemmingsplan het bestemmingsvlak "Bedrijventerrein" dubbelbestemming "Waarde-Archeologie" en functieaanduidingen "bedrijf tot en met categorie 3.2"en "detailhandel volumineus".
Het betreft een vrijstaand bedrijfscomplex met showrooms, kantoren en werkplaatsen alsmede ondergrond, buitenterrein, erf, en overige onroerende voorzieningen. Op dit moment in gebruik voor verkoop en verhuur van onder andere campers, caravans, kampeertenten met aanverwante artikelen en werkplaats.
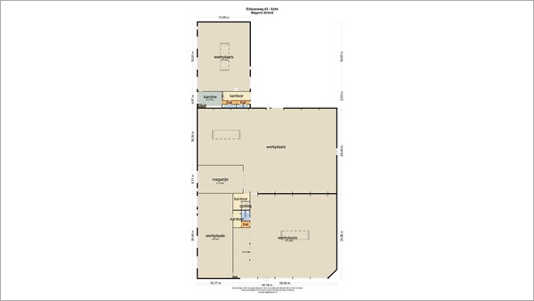
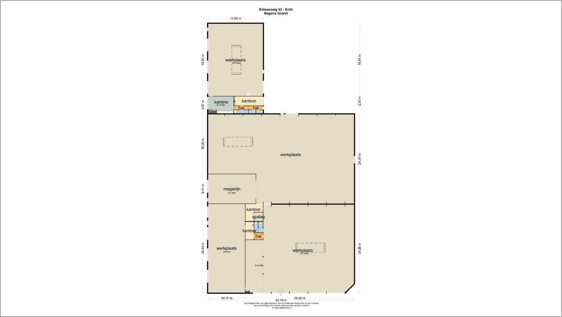
Indeling:
Entree, showroom, receptiebalie, meterkast, pantry, doorloop, kantoorruimte, toiletruimte, balie, kantoorruimte, toiletruimte, werkplaats (met entresol), magazijnruimte, kantine, doorloop, toiletgroep, doucheruimte, met witgoedaansluiting, kantoorruimte,, was- en kleedruimte, technische ruimte, werkplaats met wasplaats en entresol.
Bouwjaar 1996
VVO 2334 m2, netto inhoud 10.427 m3. (meetrapport aanwezig)
Huuropbrengsten en contractduur op aanvraag.
Opbouw:
Systeembouw met staalconstructies, beton, staal en steen.
deels stalen geprofileerde gevelplaten op een prefab-betonnen rand, voorzien van isolatie en een 'Binnendoos', deels glazen puien (slagvast), sandwichpanelen en metselwerk. Betonvloeren. Buitenterrein verharding met betonklinkers en grind. Voldoende parkeergelegenheid op eigen terrein. Twee inritten. Ter afsluiting van het terrein, met schuifpoorten en dubbele draaipoorten geheel voorzien van extra (elektrische) beveiligingsvoorzieningen.
Verwarming (en warm water) middels 3 CV- installaties met radiatoren en gasgestookte heaters. Airconditioning kantoorruimte. Mechanische luchtbehandeling.
Voor meer informatie of voor het plannen van een bezichtiging kunt u contact opnemen met:
Paula Cox 06 547 970 47 of Jack Goossens 06 27 28 54 26.
Dit object wordt u aangeboden in samenwerking met Paula Cox Limburg Mooi Wonen.