Beschrijving
LEY OP!!!!
Vanwege de grote hoeveelheid aanvragen kunnen wij op dit moment helaas geen nieuwe bezichtigingen meer inplannen.
In een rustige woonstraat van Elsloo ligt deze twee-onder-een-kapwoning met garage, overkapping en een diepe tuin op het westen. De woning beschikt over een praktische indeling, drie slaapkamers en een zolderverdieping die zich uitstekend leent voor het realiseren van een vierde slaapkamer. Een fijne basis voor wie comfortabel wil wonen en de woning naar eigen smaak verder wil inrichten.
Indeling
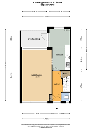
Via de voordeur komt u in de hal, met toegang tot het toilet met zwevend toilet en verwarming, de meterkast, de trap naar de eerste verdieping en de keuken.
Vanuit de hal is tevens de kelder bereikbaar. Deze is ideaal te gebruiken als provisiekelder en beschikt daarnaast over een aansluiting voor de wasmachine.
De keuken is voorzien van een 4-pits gaskooktoestel, afzuigkap en een combi oven en staat in verbinding met de woonkamer.
De doorzonwoonkamer is licht en ruim, afgewerkt met een laminaatvloer met houtnerf. Aan de voorzijde zorgen screens voor extra comfort.
Eerste verdieping
Op de eerste verdieping bevinden zich drie slaapkamers, allen voorzien van een laminaatvloer.
De badkamer beschikt over een douche en wastafel.
De slaapkamers gelegen aan de achterzijde zijn voorzien van rolluiken.
Tweede verdieping
De zolder is bereikbaar via een vaste trap en wordt momenteel gebruikt als bergzolder. Dankzij de ruimte en bereikbaarheid is deze verdieping zeer geschikt om te worden ingericht als een volwaardige vierde slaapkamer, werk- of hobbyruimte.
Overige verdiepingen
Vanuit de hal is tevens de kelder bereikbaar. Deze is ideaal te gebruiken als provisiekelder en beschikt daarnaast over een aansluiting voor de wasmachine.
Tuin
De achtertuin is gelegen op het westen en biedt veel privacy.
De tuin is ruim van opzet, voorzien van een vijver en een overkapping, ideaal om tot in de avonduren buiten te zitten.
Achter in de tuin bevindt zich de garage met smeerput, een absolute meerwaarde voor autoliefhebbers en hobbyisten. Aangrenzend is er een aparte berg-/klusruimte, ideaal voor gereedschap en werkbank.
Bijzonderheden
• Twee-onder-een-kapwoning
• Drie slaapkamers
• Zolder via vaste trap, geschikt voor 4e slaapkamer
• Kelder / provisiekelder met wasmachineaansluiting
• Tuin op het westen met veel privacy
• Overkapping en achterom
• Garage met smeerput – ideaal voor autoliefhebbers
• Berg-/klusruimte
• Gehele woning voorzien van Meranti hardhouten kozijnen
• Deels dubbel en deels enkel glas
• Rolluiken aan de achterzijde (met uitzondering van de keukenramen)
• C.V.-ketel merk Vaillant (huur, bouwjaar 2025)
• Boiler merk Bosch (eigendom)
Wonen in Elsloo
Elsloo is een sfeervol dorp met een prettige woonomgeving, dagelijkse voorzieningen, scholen en veel groen in de directe omgeving. Dankzij de gunstige ligging zijn Sittard en Maastricht goed bereikbaar, net als diverse uitvalswegen.