Beschrijving
Ben je op zoek naar een comfortabele woning met praktische indeling, garage en volop mogelijkheden om naar eigen smaak te moderniseren?
Dan is deze twee-onder-een-kapwoning aan de Dassenkuilenlaan 59 in Geleen absoluut het bekijken waard
Indeling
Via de entree/hal heb je toegang tot de toiletruimte met staand toilet en fonteintje en de trapopgang naar de eerste verdieping.
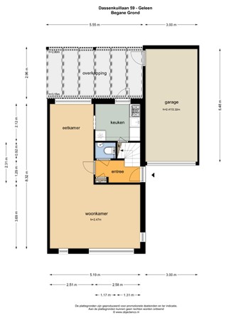
De woonkamer is uitgevoerd in een praktische L-vorm en staat in verbinding met de halfopen keuken.
De gehele begane grond is voorzien van één doorlopende plavuizenvloer, wat zorgt voor een rustige en onderhoudsvriendelijke uitstraling.
De keuken is compact en functioneel en beschikt daarnaast over een praktische bergruimte onder de trap.
Vanuit de keuken is er directe toegang tot de tuin.
Eerste verdieping
De overloop geeft toegang tot drie slaapkamers en de badkamer en is voorzien van een airco, wat zorgt voor extra comfort tijdens warme dagen.
De slaapkamers zijn afgewerkt met een laminaatvloer met houtstructuur.
De badkamer is ruim opgezet en voorzien van een ligbad, staand toilet en een wastafel met meubel.
De afwerking is gedateerd, maar biedt volop mogelijkheden voor modernisering.
Tweede verdieping
Via een vaste trap bereik je de zolderverdieping. Deze ruimte doet momenteel dienst als berg- en waszolder (met aansluiting voor wasmachine en droger), maar biedt uitstekende mogelijkheden voor het realiseren van een extra slaapkamer.
Hier bevindt zich tevens de cv-installatie (huurtoestel, overname door koper).
Tuin
De onderhoudsarme achtertuin beschikt over een fraaie overkapping met verlichting – een heerlijke plek om het hele jaar door buiten te zitten. Vanuit de tuin is er toegang tot de garage.
De ruime garage is bereikbaar via een sectionaalpoort aan de voorzijde én via een loopdeur vanuit de tuin. Ideaal voor opslag, hobby of het stallen van een auto.
Bijzonderheden
• Twee-onder-een-kapwoning
• Drie slaapkamers, mogelijkheid tot vier
• Airco op de overloop
• Rustige uitstraling door doorlopende plavuizenvloer op de begane grond
• Onderhoudsarme tuin met overkapping (voorzien van verlichting)
• Ruime garage met sectionaalpoort en loopdeur
• Volledig voorzien van rolluiken
• Zolder met uitbreidingsmogelijkheden
• Badkamer gedateerd, maar ruim van opzet
De woning is gelegen in de wijk Dassenkuil, een rustige en kindvriendelijke woonomgeving. In de directe nabijheid bevinden zich diverse voorzieningen zoals winkels, scholen en sportfaciliteiten.
Daarnaast zijn uitvalswegen goed bereikbaar, wat zorgt voor een fijne verbinding met de rest van de regio.