Beschrijving
Op een fijne en rustige locatie in de wijk Mariarade in Hoensbroek ligt deze ruime hoekwoning met praktische indeling, zonnige tuin en energiezuinige voorzieningen. Een prettige woning voor gezinnen of starters die op zoek zijn naar ruimte, comfort en een veilige leefomgeving.
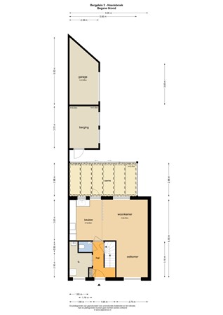
Indeling
Via de voordeur kom je binnen in de hal, die toegang biedt tot een handige wasruimte, een modern toilet met zwevend toilet en fonteintje, de meterkast en een praktische provisiekelder voor extra opslag. Vanuit de hal bereik je ook de trap naar de eerste verdieping en de woonkamer met open keuken.
De open keuken is uitgerust met inbouwapparatuur, waaronder een vaatwasser, koelkast en afzuigkap, en staat in directe verbinding met de lichte doorzonwoonkamer. Vanuit de keuken stap je zo de tuin in via een deur naar de overkapping met glazen schuifpuien — ideaal om het hele jaar door van buiten te genieten.
De onderhoudsvriendelijke tuin is ook bereikbaar via een poort naast de oprit en beschikt over een praktische berging voor fietsen en tuingereedschap
Eerste verdieping
Op de eerste verdieping bevinden zich vier slaapkamers, waarvan één perfect kan dienen als thuiswerkplek of hobbykamer. De badkamer is voorzien van een douchecabine, wastafel en staand toilet. Alle ramen aan de achterzijde zijn uitgerust met rolluiken voor extra comfort en privacy.
Tweede verdieping
Daarnaast beschikt de woning over een bergzolder, ideaal voor het opbergen van spullen of seizoensgebonden items.
Overige verdiepingen
De woning beschikt over een provisiekelder.
Tuin
De onderhoudsvriendelijke tuin is ook bereikbaar via een poort naast de oprit en beschikt over een praktische berging voor fietsen en tuingereedschap.
Bijzonderheden
De onderhoudsvriendelijke tuin is ook bereikbaar via een poort naast de oprit en beschikt over een praktische berging voor fietsen en tuingereedschap.