Beschrijving
Gulicksestraat 78 te Sittard – Karaktervol wonen met moderne luxe én een fraai aangelegde tuin in Ophoven
In de rustige en geliefde woonwijk Ophoven staat deze charmante twee-onder-een-kapwoning uit 1949 met een onder architectuur aangelegde achtertuin, ruime inpandige garage/hobbyruimte, grote oprit en 12 zonnepanelen in eigendom.
Een woning waar sfeer, ruimte en comfort mooi samenkomen. Binnen geniet je van moderne afwerking en vloerverwarming, buiten van een verzorgde tuin met meerdere zitplekken, een vlonder bij de vijver en een praktische achterom.
Met energielabel B, volledige isolatie en duurzame voorzieningen is dit een karaktervolle woning die helemaal klaar is voor de toekomst.
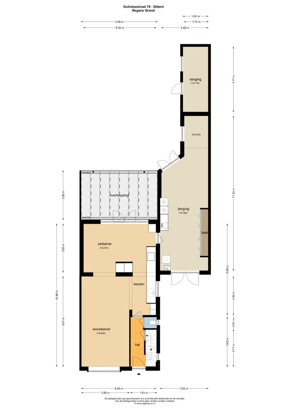
Indeling
Via de hal bereik je de kelder, het moderne toilet met zwevend closet en de trap naar boven.
De woonkamer voelt direct prettig aan. De stijlvolle Beton Ciré vloer in warme beigetint geeft de ruimte een moderne en rustige uitstraling. De vloerverwarming op de benedenverdieping zorgt daarbij voor aangenaam comfort.
De grote tuindeuren zorgen voor veel lichtinval en een fijne verbinding met de tuin en de overkapping.
De open keuken is praktisch én compleet ingericht met onder andere:
• 4-pits inductiekookplaat met Bora-afzuiging
• Combioven (AEG)
• Koelkast (AEG)
• Vaatwasser op werkhoogte (AEG)
Een fijne leefruimte waar koken en samenzijn centraal staan.
De inpandige garage is opvallend ruim en biedt veel mogelijkheden. Naast parkeren is deze ruimte zeer geschikt als hobbyruimte, werkplaats of extra opslag.
Hier bevinden zich:
• CV-ketel Nefit Trendline (2013, eigendom)
• Omvormer van de 12 zonnepanelen (eigendom)
• Aansluitingen voor was- en droogcombinatie
Vanuit de garage is er directe toegang tot de tuin.
Eerste verdieping
Op de eerste verdieping bevinden zich twee ruime slaapkamers met vaste muurkasten.
De badkamer is compleet uitgevoerd met een inloopdouche, dubbele wastafel, toilet en designradiator.
Tweede verdieping
Via een vaste trap bereik je de zolderverdieping. Hier bevindt zich een ruime derde slaapkamer en twee praktische bergingen. Ideaal als extra slaapkamer, werkkamer of hobbyruimte. Tevens bevindt zich hier een airconditioning welke zorgdraagt voor een aangename temperatuur.
Tuin
De achtertuin is onder architectuur aangelegd en prettig ingedeeld. Verspreid over de tuin zijn meerdere zitplekken gecreëerd, zodat je op elk moment van de dag een fijne plek in de zon of schaduw vindt.
Achter in de tuin, bij de vijver, ligt een vlonder met zithoek. Daarnaast is er een buitendouche aanwezig — een extra comfort tijdens warme dagen.
De tuin is bereikbaar via de woning, via de garage én via een praktische achterom. Aansluitend aan de garage bevindt zich een ruime stenen berging.
Bijzonderheden
✔ Bouwjaar 1949
✔ Energielabel B
✔ 12 zonnepanelen in eigendom
✔ Dak-, gevel- én vloerisolatie
✔ Alle ramen voorzien van deels HR++ en triple glas
✔ Hoofddak vernieuwd in 2002
✔ Beton Ciré vloer met vloerverwarming (benedenverdieping)
✔ Grote oprit en ruime voortuin
✔ Airconditioning op de zolderverdieping
Een woning met karakter, moderne afwerking, een fijne tuin en energiezuinige voorzieningen — klaar voor de volgende bewoners.
Nieuwsgierig geworden?
Wij nodigen je van harte uit om deze woning zelf te komen ervaren tijdens een bezichtiging.